Ein Neubau im direkten Umland von Berlin – schlicht und mit erdigem Schwung.
Mit Wintergarten und Stampflehmwand
Falkensee
» Fertigstellung: 2004
Das Wohnhaus wird als Niedrigenergiegebäude in Massivbauweise mit Holzbalkendecke und Holzdachkonstruktion errichtet. Der südlich vorgelagerte Wintergarten schafft die Verbindung von Natur und Wohnen und bietet – unterstützt durch seine konvektive Erdrohr-Kühlung – einen angenehmen Naturraum vom Frühjahr bis zum Spätherbst.
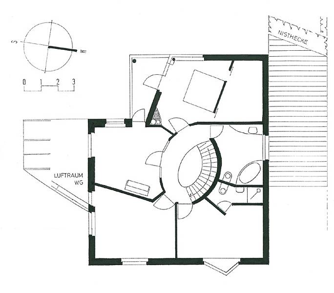
Räumlich öffnet sich der Grundriß zum westlich gelegen Gartenland, das durch den überdeckten Freisitz und den Balkon im Obergeschoß in das Entwurfskonzept einbezogen ist.
Eine geschwungene Stampflehmwand geleitet den Bewohner über eine freie Treppe vom Eingangsniveau zum Obergeschoß. Die Lehmwand ist das zentrale Element des Hauses – quasi das Herzstück.
Mit ihren hellen Tonerde-Adern gibt sie dem Betrachter nicht nur ästhetische Anreize sondern präsentiert sich als eine mehrfunktionale Raumskulptur: Zum einen gibt sie dem Wohnraum die gewünschte thermische Masse zum anderen bereichert sie das Raumklima durch ihre Feuchte regulierende Wirkung. Die fokussierende Form bildet für den gegenüber geplanten Lehmofen einen Wärmeschirm und unterstützt so das Heizsystem. So bietet die zweigeschossige Stampflehmwand einen schützenden Rahmen und vermittelt dem Bewohner ein Gefühl von Geborgenheit und Solidität.
Außerdem reflektiert die Parabolwand aus Lehm natürliches Tageslicht von einem großen Oberlicht in der Dachfläche durch das organisch geformte Treppenauge bis in das Erdgeschoß. Alles ist solargeometrisch genau geplant, so daß der veränderliche Sonnenstand auch im Inneren des Gebäudes wahrgenommen werden kann. Fast überflüssig zu erwähnen, daß die Stampflehmwand nebenbei auch noch eine ganz normale Raumtrennwand ist.












